![]() |
![]() |
![]() |
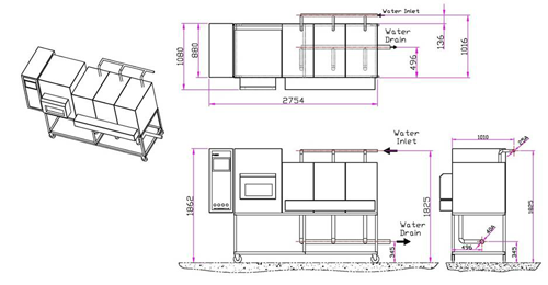
▶ LAB Pasteurizer is specialized design for use to test and simulate after filling of beverage at Lab. ▶ Temperature managing control by 5 different section. ▶ Water temperature control by 3 different water tanks. ▶ Maximum 20 beverage bottles can tested by one time. ▶ All testing data is saving by 2D Graph & Excel file ▶ It mostly proper and high efficiency to test of HR bottle production. |




